To meet demand for services, Isabella Citizens for Health plans for new addition
To meet growing demand and better serve its patients, a 24,000 square-foot expansion to Isabella Citizens for Health’s facility is planned to break ground this fall.
In November of 2019, 35 employees moved into Isabella Citizens for Health’s (ICH) current location at 2790 Health Parkway in Mt. Pleasant believing that there would be enough space for at least five years. Now, with 65 employees under its roof and more demand for services, the organization is looking to break ground on an expansion to its current facility this fall.
One reason that has contributed to ICH’s need for more employees is the pandemic causing a need for community COVID-19 testing and vaccinations. In addition to their primary care services, ICH has provided drive-thru testing for the virus and walk-in vaccinations.
Currently, there is also a high demand from citizens in the Mt. Pleasant community requesting to transition their primary care to Isabella Citizens for Health. By expanding its facility, ICH will be better equipped to meet the community’s needs.
“In order for us to continue to grow and provide the services that are needed in our community, we need to start our expansion,” says Jennifer White, Chief Executive Officer of Isabella Citizens for Health. “The expansion will provide another 24,000 square feet of space, so it’s basically going to double the size of our space now.”
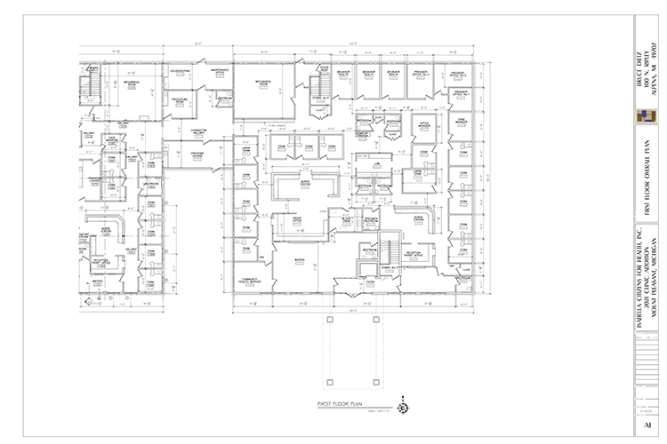
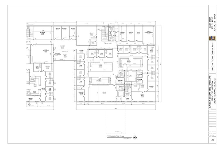
The proposed two-story addition will be built adjacent to the current facility and will provide three additional pediatric provider spaces, six family practice providers, and integrated behavioral health services.
“In our current building, we have a lab on-site and a pharmacy on-site. Our whole model of care is to create a one-stop-shop, so people can have much of what they need on a regular basis in this one location,” says White.
There will be an additional four out-patient therapists when the building opens and the structures will be connected by a walkway between the two front entrances providing patients easy access to both buildings.
Unless delayed by unforeseen circumstances, ICH hopes to break ground on the new facility this fall. To learn more about Isabella Citizens for Health, visit isabellahealth.org.




